Accessory Dwelling Units (ADUs) offer a practical solution to address the housing shortage while giving property owners flexibility for rental income, housing aging parents, or accommodating adult children. While Early New England Homes was founded over 20 years ago to build handcrafted period homes in the 1,400 to 3,000 square foot range, we now offer ADUs that bring the same colonial craftsmanship to smaller footprints.
We sat down with Paul Baker, General Manager at Early New England Homes, to discuss our ADU options and what property owners need to know.
Understanding ADUs: More Than Just a Backyard Cottage
Accessory Dwelling Units (also called granny flats, in-law suites, or backyard cottages) are independent living spaces on the same property as a primary residence. They include separate entrances, kitchens, bathrooms, and living areas, functioning as complete, self-contained homes.
ADUs typically range from 500-900 square feet and come in three main types: detached structures, attached additions to existing homes, and converted spaces such as garages or basements. Detached ADUs offer the most privacy and independence for occupants.
The global ADU market is projected to grow from $19.65 billion in 2025 to $47.34 billion by 2035, yet a Freddie Mac survey found that 71% of respondents were unfamiliar with ADUs.
Why Our Colonial-Inspired Construction Works for ADUs
Early New England Homes offers a unique product in the ADU space. We build handcrafted, 1800s period-style homes rooted in New England tradition and adapted for modern living. Each home features a beautifully timbered ceiling system showcasing rough-sawn timber.
The timber frame ceiling system, combined with handmade trim and paneling, handmade doors, and wide board floors, creates spaces that harken back to our colonial history.
“You can’t help it when you walk into a space like that—it causes you to wonder, to contemplate,” said Baker. “I have clients that come in here all the time and say, ‘I smile every time I come down my stairs. Every time I pull in my driveway, I smile at my house.’ You don’t get tired of it. It’s just so unique.”

Two Classic Designs, Endless Possibilities
Whether you envision a cozy standalone retreat or a more spacious layout with added character, our ADU models deliver authentic New England charm in a compact footprint.
Our ADU Offerings
Early New England Homes offers two distinctive ADU designs that combine authentic colonial character with modern functionality.
The Beckwith ADU

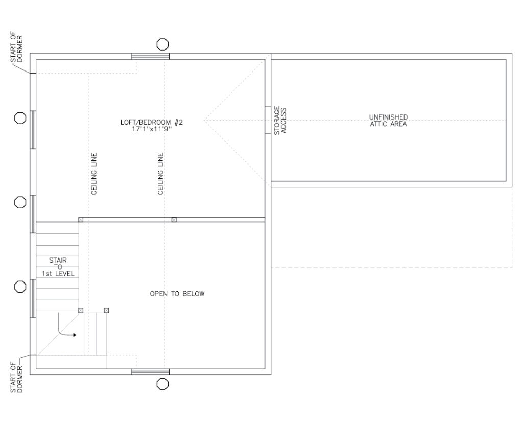
The Beckwith features a traditional Ell addition, hearkening back to the continuous architecture old New England is so loved for. The extra space on the first floor allows for a second bedroom, home office, or whatever use best suits its lucky residents. Supported by an impressive, exposed timber ceiling, the classic winder stair leads to a second-floor loft well-lit by a full shed dormer and with a balcony view to below. Purposeful design and handmade craftsmanship make this small home a sweet home!
Available base configurations range from 730 to 805 square feet, with ADU kit prices starting at $35,280. The distinctive L-shaped Ell additions are available in three sizes (8′, 10′, or 12′) and extend from 8 to 36 feet in length at $52.50 per square foot.

First floor

Second floor
The Nutmeg ADU

The Nutmeg is a charming small home with captivating features! The covered farmer’s porch main entry is both inviting and provides protection year-round. Inside, a handcrafted full-dimension, rough-sawn timbered ceiling personifies the timeless style our homes are known for and sets our ADUs above all others. This is a one-bedroom home, including 1-1/2 bathrooms and a sunny loft bedroom with an unexpected balcony with a view to below. The Nutmeg’s thoughtful design includes all the amenities of a larger home, and its farmhouse charm proves small can be beautiful!
A variety of size options are available to match your property requirements and local code allowances, from 18′ x 24′ (432 sq ft) to 18′ x 50′ (900 sq ft).
Please note: Pricing reflects pre-cut ADU kits only, representing our cost for materials. Total turnkey project costs typically reach $250,000 to $300,000 in the Northeast, including foundation (but not excavation), builder labor, finishes and utilities.

First floor

Second floor
What’s Included in Your Building Package
Every Early New England Homes ADU kit includes:
Engineer-Stamped Plans & Documentation
- Complete building plans with structural engineer’s seal
- Detailed construction booklets
- International Residential Code-compliant plans
Unique Timber Frame Components
(Full dimension, rough sawn #2 Eastern White Pine, pre-cut and labeled)
- Summer beams, rim beams, center posts, floor joists
- Curved braces and galvanized steel connection plates
Structural Framing
(Dimensioned, kiln-dried #2 Douglas Fir, pre-cut and labeled)
- Exterior wall studs, common rafters, and ridge beam
First Floor Ceiling Boards
- Premium grade, kiln-dried T&G Eastern White Pine creating the signature exposed ceiling backdrop
Your builder adds insulation, siding, roofing, windows, doors, finishes, and mechanical/plumbing/electrical systems to complete the project. Our pre-cut, labeled system eliminates guesswork, reduces waste, and speeds construction. Home components are precut to specification and ready for assembly.
Customization Options
Customization options address specific ADU requirements. Separate entrances integrate naturally, full kitchens and bathrooms configure easily, and we can accommodate ADA accessibility needs for elderly residents requiring single-floor living.
The structure comes as a pre-cut kit with complete plans showing a fully functional home. We don’t provide labor, but maintain a builder network to connect clients with experienced contractors in their area.

Navigating the ADU Planning Process
Zoning and Setback Requirements
The most common restrictions relate to your property’s building envelope and setbacks. These determine how close structures can be to property lines, existing buildings, and reserved areas like septic systems, wells and wetlands.
“There’s nothing about any ADU company that’s going to make it land better on your property because we all have to satisfy the same square foot requirements,” Baker said. The first challenge is determining whether you have adequate space within your building envelope. Setbacks typically range from 10-25 feet from side and rear property lines.
Not all jurisdictions permit ADUs yet, though this is changing rapidly. Check with your local planning department—many are actively considering regulatory changes.
Foundation and Site Preparation
A concrete foundation works best, either a full basement or crawl space. “We’re talking about a small amount of living space,” Baker explains. “We want to have a place outside of that living space to keep mechanicals. A basement or crawl space is the ideal spot for mechanicals that’s not interfering with usable living space.”
Excavation varies dramatically based on site conditions. Properties side by side can have vastly different expenses due to site conditions. One might encounter ledge requiring blasting while the neighboring lot digs easily. This is why excavation, driveways, wells, and septic systems are typically bid separately and not included in turnkey costs.
Utility Connections
Our ADU plans show complete plumbing, electrical, and mechanical systems. The question is how utilities route from your existing residence to the new ADU. Utilities enter through the foundation and rise where needed. This is another reason crawl spaces prove valuable for accessible routing.
For municipal sewer, you may be able to run a new line to the existing system. Septic systems require evaluation by your local sanitarian to determine if your system can handle additional bathrooms. Distance from utilities can affect costs significantly. Positioning the ADU closer can minimize installation expenses.
Timeline Considerations
Early New England Homes operates on a six-month minimum lead time from purchase to delivery. This encompasses plan development, material procurement, and manufacturing. Builder timelines vary based on workload, crew size, weather, and site challenges. Experienced builders with adequate crews typically complete ADU projects more efficiently.

Cost Considerations and Investment Planning
Northeast Regional Pricing
For the Northeast, one could budget approximately $250,000 to $300,000 for a completed ADU project. “For the Northeast, just under $300K is not unreasonable,” Baker confirms, based on recent cost analyses and builder discussions.
That figure represents turnkey costs: the builder’s complete labor and materials package delivering a move-in ready space. “By definition, and it’s always good to get your builder’s definition of turnkey, but generally speaking, it’s the whole project, labor and materials, less anything site-specific” Baker explains.
What Turnkey Includes (and What It Doesn’t)
Turnkey covers everything from foundation through final finishes. You can move in furniture and start living immediately.
What turnkey typically excludes:
- Excavation for the foundation
- Utility line installation from existing sources
- Driveway or access path construction
- Well or septic system work
These exclusions make sense because site conditions vary dramatically even between neighboring properties.
Cost Factors Under Your Control
Size and layout:
Within this 500 to 900 square foot range, both size and layout complexity affect cost. Our flexible design lets you right-size the space without paying for unnecessary square footage.
Level of finish detail:
Countertop selections, flooring choices, fixture quality, and trim details all affect final costs. Prioritize where you invest in premium materials versus standard options.
Distance from utilities:
Keeping the ADU closer to existing connections should minimize installation costs.
DIY versus turnkey:
Some homeowners choose to build ADUs themselves rather than hiring a contractor for a turnkey project. For skilled DIYers willing to provide their own labor, costs will be significantly lower than the turnkey figures mentioned above. Labor typically constitutes the largest cost component, so handling construction personally represents substantial savings. However, it’s important to note that most jurisdictions require licensed professionals for certain home systems, including electrical, plumbing, and HVAC installations. While you can handle much of the construction yourself, you’ll still need to budget for these specialized trades to ensure your ADU meets code requirements and passes inspection. Some homeowners choose to build ADUs themselves rather than hiring a contractor for a turnkey project. For skilled DIYers willing to provide their own labor, costs will be significantly lower than the turnkey figures mentioned above. Labor typically constitutes the largest cost component, so handling construction personally represents substantial savings.
Investment Perspective
When $300,000 feels daunting, consider the context. “It’s a small place—we’re talking 500 to 900 square feet. That’s small. But it’s not a big number when you’re talking about a whole house,” said Baker.
The comparison becomes favorable when considering property value increases. Properties with ADUs in California experienced 9.34% annualized growth in appraised value from 2013 to 2023, compared to 7.65% for properties without ADUs (Federal Housing Finance Agency). By 2023, the median appraised value for properties with ADUs reached $1,064,000 compared to $715,000 without.
The National Association of Realtors reports homes with ADUs are priced about 35% higher on average. Add rental income (48% of homeowners cite rising rent as their trigger for building ADUs) and many find their ADUs generate positive cash flow while building long-term equity.
Design Features that Create Lasting Appeal
Any company can create a functional ADU, but the difference is crafting a space that brings joy and pride. Early New England Homes ADUs are uniquely distinct for fans of Colonial-era architecture, with handcraftsmanship that makes an immediate impact.
The Timber Frame Ceiling System
Our signature timber frame ceiling system elevates the Beckwith and Nutmeg beyond typical ADU construction. These exposed beams and joists create visual interest and architectural character that resonates with residents for a lifetime.
Combined with handmade trim, hand-planed wall paneling, doors, and wide board flooring, these elements create spaces that invite contemplation and appreciation. This isn’t marketing language—it’s consistent client feedback from people who genuinely smile every time they walk through their doors.
For renters, this distinctive aesthetic commands premium rates and attracts quality tenants. For family members, it signals their living space was designed with care, not relegated to a basic structure.
Functional Layout Considerations
The Ell or Wing Addition’s shape naturally creates distinct zones. Living areas, sleeping spaces, and service areas flow logically without wasted hallway space. In compact 500 to 900 square foot footprints, this efficient layout maximizes usable area.
Two-story configurations offer even more flexibility. First floors can accommodate full living spaces for single-story accessibility, while second floors and shed dormers provide additional bedrooms or office space. Natural light penetrates effectively, preventing a cave-like feeling that affects poorly designed small spaces.
Long-Term Livability
ADUs serve diverse purposes over their lifetimes. Today’s rental unit becomes tomorrow’s home office, then eventually housing for aging parents or returning adult children. Our construction quality and aesthetic durability support these evolving uses.
“You never get tired of seeing the beautiful wooden beams,” said Baker. “It’s just so unique.” This enduring appeal matters tremendously for spaces serving your property for 30, 40, or 50+ years across multiple use cases.

Getting Started: Your Path to an ADU
Initial Assessment
Start by answering these key questions:
- Does your municipality permit ADUs?
- Do you have adequate space within building envelope setbacks?
- Can your existing septic system accommodate additional bathrooms?
- What’s your intended use—rental income, family housing, home office, or flexible future options?
Connect With Our Team
Reach out to discuss your project. We’ll help you understand whether the Beckwith or Nutmeg fits your needs, discuss customization options, and connect you with experienced builders in our network.
Our six-month lead time from purchase to delivery means planning ahead pays off. Starting conversations now positions you for construction during the optimal building season.
Builder Selection
Whether choosing a builder from our network or sourcing your own contractor, prioritize experience with similar-scale projects and verify familiarity with local ADU requirements. Request detailed proposals that clearly separate turnkey costs from site-specific expenses.
Frequently Asked Questions About ADUs
Can I use my ADU as a short-term rental (like Airbnb)?
Short-term rental regulations vary significantly by municipality and are often stricter than long-term rental rules. Some communities permit short-term ADU rentals with proper licensing, while others restrict ADUs to long-term tenants (typically 30+ day stays) or owner-occupied use only. Check your local zoning code and HOA restrictions before planning short-term rental income. Some areas also impose occupancy taxes or require business licenses for short-term rentals.
Do I need separate utility meters for my ADU?
Utility metering requirements vary by jurisdiction and utility provider. Some areas require separate electric and water meters for ADUs, while others allow submeter arrangements where the ADU connects to the main house’s utilities. Separate metering makes rent calculations simpler and can satisfy code requirements, but adds installation costs. Gas, electric, and water companies in your area will have specific policies. Contact them early in planning to understand requirements and connection fees.
What happens if my property doesn’t have enough septic capacity for an ADU?
If your existing septic system can’t handle the additional load (typically calculated by bedroom count), you have several options. You can upgrade to a larger septic system, install a separate dedicated system for the ADU, or explore alternative systems like composting toilets or greywater recycling for code-compliant solutions in some jurisdictions. Your local sanitarian will evaluate your soil, property size, and current system to determine the best approach. This evaluation should happen early in planning, as septic work can significantly impact project costs and timelines.
Can Early New England Homes ADUs be built in warmer climates outside the Northeast?
Yes, our pre-cut kits ship nationwide and work in various climates. However, foundation recommendations may differ. Warm southern climates might use different types of foundations instead of basements or crawl spaces, though this affects where mechanical systems are housed. Your local builder will adapt construction details (insulation levels, HVAC sizing, moisture barriers) to your climate while the timber frame ceiling system maintains the colonial aesthetic that defines our homes.
What’s the difference between your ADU kit and a typical prefab ADU?
Early New England Homes provides a pre-cut, pre-labeled ADU kit with materials precisely manufactured for on-site assembly by your builder. This differs from prefab ADUs that arrive as finished modules requiring only crane placement and utility hookup. Our approach offers several advantages: complete customization of finishes and layout, ability to adapt to unique site conditions, integration with local builder networks familiar with regional codes, and the distinctive timber frame ceiling aesthetic you can’t get in factory-built units. The tradeoff is longer construction time versus prefab’s quick installation.
Are there tax benefits or incentives for building an ADU?
Tax implications vary by location and use. Some states and municipalities offer property tax exemptions or deferrals for ADUs, particularly those used for affordable housing or family members. The IRS currently allows deductions for rental property expenses (mortgage interest, depreciation, repairs, utilities) if you rent your ADU, though this affects your primary residence tax treatment. Some areas offer development fee waivers, expedited permitting, or utility connection fee reductions to encourage ADU construction. Consult a local tax professional familiar with ADU regulations in your area. Benefits change frequently and depend on your specific situation.
How do ADUs affect homeowners insurance?
Most homeowners insurance policies automatically cover detached structures on your property up to a percentage of your dwelling coverage (typically 10-20%), but ADUs often exceed these limits due to their livable nature. Contact your insurance agent before building—you’ll likely need to increase coverage limits and may need additional liability coverage if renting. Some insurers require separate dwelling fire policies for ADUs. If using the ADU as a rental, you’ll need landlord insurance or a specific endorsement. Expect insurance costs to increase, but the rental income typically offsets this expense significantly.
