The Beckwith: Accessory Dwelling Unit
The Nutmeg
A Charming Small Home with Captivating Farmhouse Character
A charming farmhouse ADU with a covered farmer’s porch and handcrafted rough-sawn timbered ceiling that sets it apart. Thoughtful design, timeless New England style, and handmade craftsmanship — all in a kit that ships nationwide.
Farmhouse Charm, Timeless Craft
Small Can Be Beautiful
The Nutmeg ADU is a charming small home with captivating features! The covered farmer’s porch-main entry both invites and protects year-round. Inside, a handcrafted full-dimension, rough-sawn timbered ceiling personifies the timeless style our homes are known for and sets our ADUs above all others. This is a one-bedroom home, including 1-1/2 bathrooms and a sunny loft bedroom with an unexpected balcony with a view to below. The Nutmeg’s thoughtful design includes all the amenities of a larger home, and its farmhouse charm proves small can be beautiful!
Customization Options
- Interior & Exterior Trim
- Early New England Winder Stair
- Wide Board Flooring — 12"–17"
- 36" Front Entry Door with Transom Window & Storm Door
- Narrower Flooring — 8", 10" & 12"
- Board & Batten Doors
- Wall Paneling & Wainscoting
- 4-Panel Doors
- Built Ins & Closets
- Period Handforged Hardware
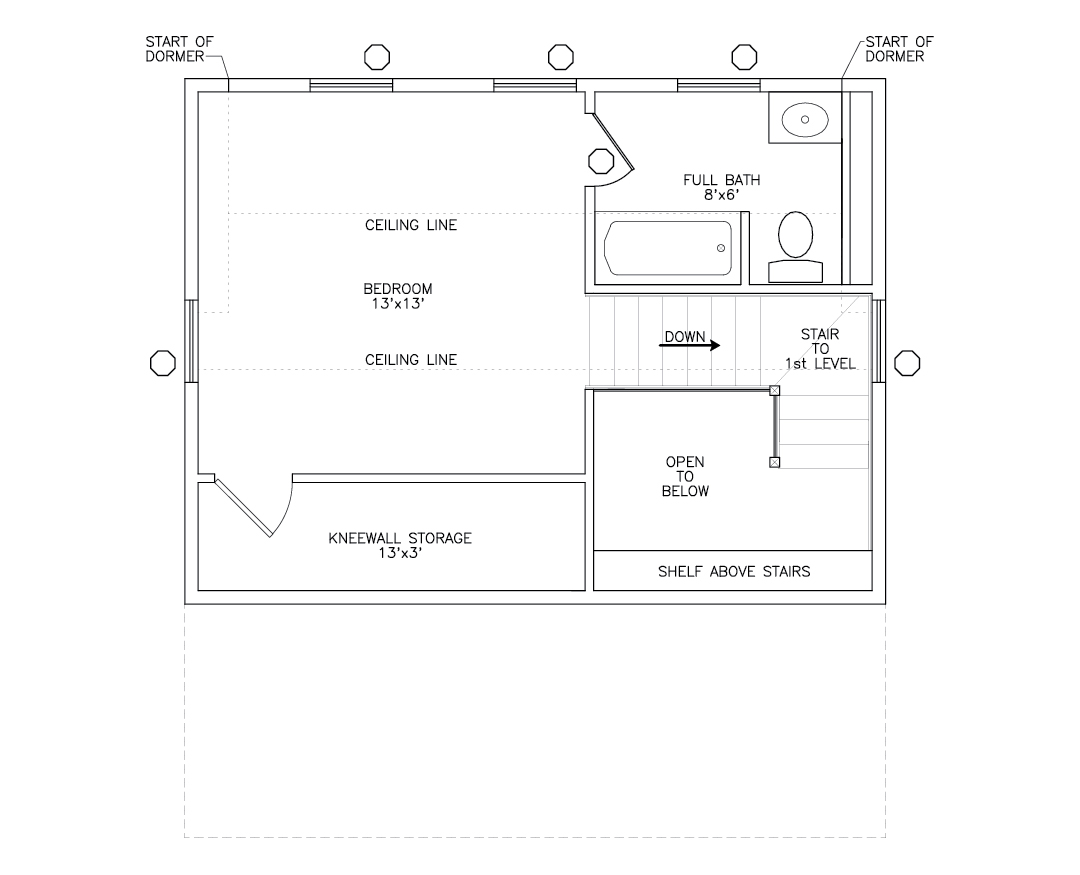
Layout & Dimensions
Main floor and upper floor plans — labeled rooms with dimensions.
Download the complete floor plan package including dimensions, room labels, and specification notes.
Download PDF Floor PlansThe Nutmeg — What’s Included
Components are pre-cut, labeled, and ready for assembly by your local contractor.
Your Kit Includes
- Engineer stamped building plans and construction booklets
-
Full dimension, rough sawn #2 Eastern White Pine, pre-cut and labeled
- 14" x 10" Summer Beams
- 4" x 10" Rim Beams
- 7" x 8" Center Posts
- 5" x 6" & 5" x 7" Floor Joists
- Galvanized Steel Connection Plates
-
Dimensioned, kiln-dried #2 Douglas Fir, pre-cut and labeled
- 2" x 6" First Floor Exterior Wall Studs at 16" o.c.
- 2" x 12" Common Rafters at 16" o.c.
- 2" x 16" Ridge
- First Floor Ceiling Boards — 1" x 8", 10" & 12" Premium Grade, Kiln-Dried T&G Eastern White Pine
- Early New England Homes live technical support throughout build
Your Contractor Handles
- Site preparation and foundation
- Building permits and local approvals
- Plumbing rough-in and fixtures
- Electrical wiring, panel, and fixtures
- HVAC system
- Insulation and vapor barrier
- Interior wall framing, drywall, and finishes
- Kitchen cabinetry and appliances
- Painting and final finishes
Need a contractor? We may be able to help connect you with experienced builders nationwide who have built our homes. Ask us when you reach out.
For a complete breakdown of what's included in the Early New England Home kit and what your contractor will handle, see our full kit overview on the ADU main page.
Nutmeg Pricing
Kit pricing for The Nutmeg — contact us for a complete quote.
What Affects the Final Price
- Site conditions and foundation type — slab, piers, or crawlspace
- Local contractor labor rates in your area
- Customization options selected — roofing, cladding, windows, doors
- Interior finish level — basic vs. premium materials
- Permitting fees — vary significantly by municipality
- Utility connection costs for plumbing, electric, and HVAC
