logo

The Beckwith: Accessory Dwelling Unit

The Beckwith  

A Sweet Small Home with Charming Character

A traditional ADU hearkening back to the continuous architecture old New England is so loved for. Purposeful design, an impressive exposed timbered ceiling, and handmade craftsmanship — all in a kit that ships nationwide.  

800
Sq Ft
2/1
Bed / Bath
2
Levels
$30,240
Kit Starting At

Traditional Architecture  

A Small Home that Lives Large

The Beckwith ADU is a thoughtfully designed small home that packs a lot of living into every square foot. The extra space on the first floor allows for a second bedroom, home office, or whatever use best suits its lucky residents. Supported by an impressive, exposed timbered ceiling, the classic winder stair leads to a second-floor loft well-lit by a full shed dormer and with a balcony view to below. Purposeful design and handmade craftsmanship make this small home a sweet home!

This Model Is Best For
Multigenerational Living Aging-in-Place Suite Long-Term Rental Adult Children

Customization Options

  • Interior & Exterior Trim
  • Early New England Winder Stair
  • Wide Board Flooring — 12"–17"
  • 36" Front Entry Door with Transom Window & Storm Door
  • Narrower Flooring — 8", 10" & 12"
  • Board & Batten Doors
  • Wall Paneling & Wainscoting
  • 4-Panel Doors
  • Built Ins & Closets
  • Period Handforged Hardware

Layout & Dimensions  

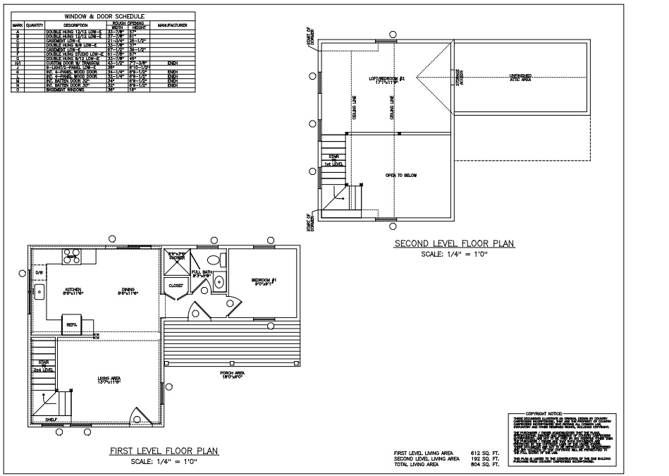
Main floor and upper floor plans — labeled rooms with dimensions.

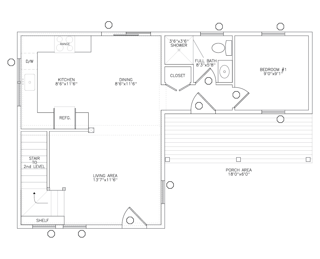
The Beckwith ADU first floor plan — living area, dining, kitchen, full bath
First Floor
Living / Dining / Kitchen · Full Bath
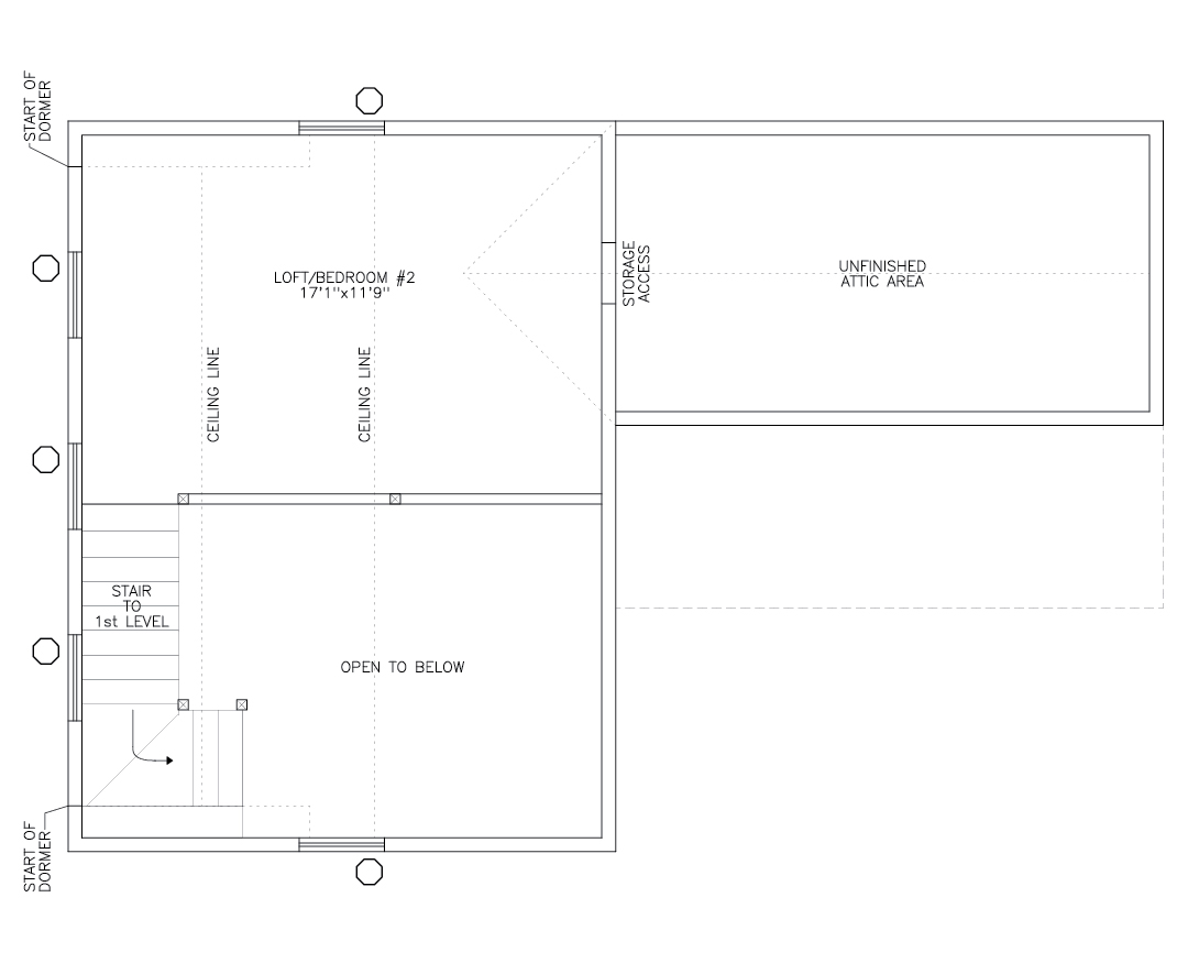
The Beckwith ADU second floor plan — bedroom, loft, storage
Second Floor
Bedroom · Loft · Storage

Download the complete floor plan package including dimensions, room labels, and specification notes.

Download PDF Floor Plans

The Beckwith — What’s Included

 

 Components are pre-cut, labeled, and ready for assembly by your local contractor.

Your Kit Includes

  • Engineer stamped building plans and construction booklets
  • Full dimension, rough sawn #2 Eastern White Pine, pre-cut and labeled
    • 14" x 10" Summer Beams
    • 4" x 10" Rim Beams
    • 7" x 8" Center Posts
    • 5" x 6" & 5" x 7" Floor Joists
    • Galvanized Steel Connection Plates
  • Dimensioned, kiln-dried #2 Douglas Fir, pre-cut and labeled
    • 2" x 6" First Floor Exterior Wall Studs at 16" o.c.
    • 2" x 12" Common Rafters at 16" o.c.
    • 2" x 16" Ridge
  • First Floor Ceiling Boards — 1" x 8", 10" & 12" Premium Grade, Kiln-Dried T&G Eastern White Pine
  • Early New England Homes live technical support throughout build

Your Contractor Handles

  • Site preparation and foundation
  • Building permits and local approvals
  • Plumbing rough-in and fixtures
  • Electrical wiring, panel, and fixtures
  • HVAC system
  • Insulation and vapor barrier
  • Interior wall framing, drywall, and finishes
  • Kitchen cabinetry and appliances
  • Painting and final finishes

Need a contractor? We may be able to help connect you with experienced builders nationwide who have built our homes. Ask us when you reach out.

For a complete breakdown of what's included in the Early New England Home kit and what your contractor will handle, see our full kit overview on the ADU main page.

Beckwith Pricing

 

Kit pricing for The Beckwith — contact us for a complete quote.

Kit Pricing Breakdown
18' x 24' $22,680
18' x 30' $28,350
20' x 24' $25,200
20' x 30' $31,500
22' x 24' $27,720
22' x 30' $34,650
8' x 18' * $7,560 or $52.50/sq ft.
10' x 18' * $9,450 or $52.50/sq ft.
12' x 18' * $11,340 or $52.50/sq ft.
6' x 24' * $1,900 or $80/run ft.
6' x 30' * $2,400 or $80/run ft.
* More sizes available in 2' increments upon request

What Affects the Final Price

  • Site conditions and foundation type — slab, piers, or crawlspace
  • Local contractor labor rates in your area
  • Customization options selected — roofing, cladding, windows, doors
  • Interior finish level — basic vs. premium materials
  • Permitting fees — vary significantly by municipality
  • Utility connection costs for plumbing, electric, and HVAC

Pricing Compare ADU Models

 

Not Sure The Beckwith is the right fit? Here are a few models worth a look.

Ready to Get Started?